Технически данни за Actil Warehouse Trucks OPL 10 3.0

Модел 2021-2026 Europe EN

Този лист с данни (PDF) ще бъде изпратен в пощенската ви кутия, след като предоставите имейл адреса си.

  • автентични технически данни от производителя
  • Повече информация
  • подробна спецификация

*Търговски условия

Важи политиката за защита на личните данни на дружеството LECTURA GmbH, където се съдържа допълнителна информация относно възможностите за корекция, заличаване и блокиране на данните ми.

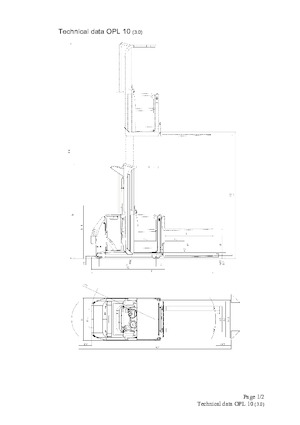
Машини за събиране на поръчки Actil Warehouse Trucks OPL 10 3.0



покажи подробната спецификация